Property Details

  • Centris No.: 23848063
  • Price : $1,475,000
  • Property Type : single-family
  • 2301 ft2
  • 5 + 1 bedrooms
  • 3 + 1 bathrooms

Broker - Remarks

Nestled on a quiet, family-friendly street just steps from Lakeshore Road and beautiful Millennium Park, this ideally located property offers peaceful living with quick access to Highways 20 and 13. This solid, well-built home features a spectacular central staircase, 4+1 bedrooms and a basement with a second kitchen -- perfect for an intergenerational setup or extended family living. A rare opportunity in one of Dorval's most desirable sectors. Inventory is low in this area -- don't miss your chance!

Inclusions

Refrigerator, cook top, dishwasher, refrigerator and a cook top in the basement, generator, light fixtures, all sold without warranty.

Exclusions

Security cameras.

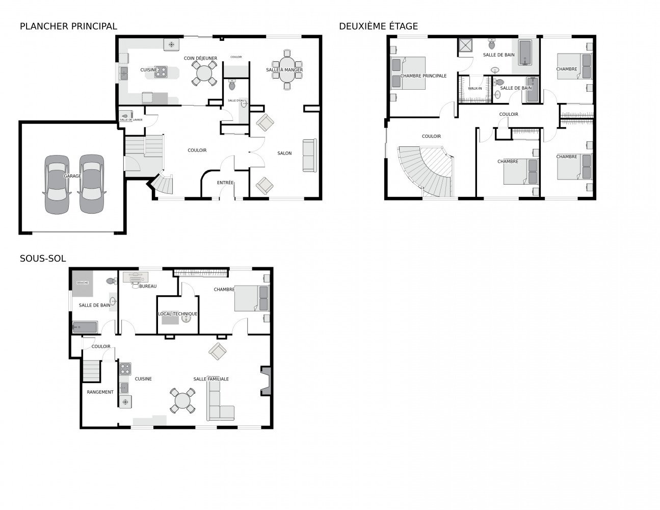
Room(s) and Additional Space(s)

Room Level Dimensions Flooring Additional Information
Hallway RC 9.0x5.0 P Ceramic tiles
Den RC 19.9x17.6 P Ceramic tiles
Living room RC 13.3x16.4 P Parquetry
Dining room RC 13.4x12.10 P Parquetry
Kitchen RC 11.9x12.10 P Ceramic tiles
Dinette RC 8.4x12.10 P Ceramic tiles
Washroom RC 4.10x8.8 P Ceramic tiles
Laundry room RC 4.11x5.6 P Ceramic tiles
Den 2 17x15.2 P Carpet
Master bedroom 2 13x15.2 P Carpet
2 6.4x5.2 P Carpet
Bathroom 2 15.7x7.1 P Ceramic tiles
Bedroom 2 10.1x12.6 P Carpet
Bedroom 2 10.1x15 P Carpet
Bedroom 2 12x13.1 P Carpet
Bathroom 2 8.11x5.2 P Ceramic tiles
Family room 0 19.1x17.6 P Floating floor
Kitchen 0 9.5x17.6 P Floating floor
Bedroom 0 17.8x12.3 P Floating floor
Home office 0 11.2x12.3 P Floating floor
Bathroom 0 8.9x12.3 P Ceramic tiles
Storage 0 6.7x12.5 P Floating floor

Expenses

Municipal Taxes $5,320.00 Annually
School taxes $1,041.00 Annually

Features

  • Heating system: Air circulation, Other
  • Water supply: Municipality
  • Heating energy: Electricity, Propane
  • Equipment available: Central air conditioning
  • Foundation: Poured concrete
  • Hearth stove: Other, Gaz fireplace
  • Garage: Attached, Single width
  • Proximity: Highway, Cegep, Daycare centre, Golf, Hospital, Park - green area, Bicycle path, Elementary school, High school, Public transport
  • Bathroom / Washroom: Adjoining to the master bedroom
  • Basement: 6 feet and over, Other, Finished basement
  • Parking: Garage
  • Sewage system: Municipal sewer
  • Landscaping: Fenced
  • Roofing: Asphalt shingles
  • Zoning: Residential

contact

Certified Real Estate Broker
Jonathan Ward
Agent